PARKING SILO SUD - ILOT 4C1 - LES FABRIQUES MARSEILLE
Le projet est voulu comme un hub de mobilité et de services, regroupant des places de stationnement, un centre de mobilité à l’échelle du quartier, un espace animé et ouvert sur le quartier ainsi qu’un local sportif. Le projet se développe dans une volumétrie extrêmement simple qui se différencie des volumes très fractionnés des ilots de logements qui l’entourent. Il propose sur ses quatre façades un rythme de lames de bois verticales qui se mettent en dialogue avec les modénatures de logements. Au nord, au contact de la rue jardin la structure principale défi nit un volume évidé qui sera support d’activité en relation avec l’espace public. Une nappe photovoltaïque recouvrira la quasi totalité de la surface du dernier niveau.
L
DEBUT DU CHANTIER JUILLET 2021
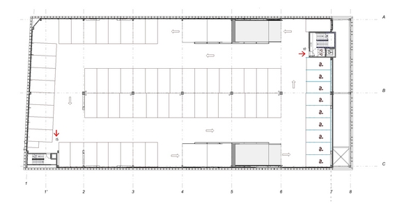
parking 422 places
local sportif 273 m²
zone activités 276 m²
M.O : LINKCITY sud-est
Coût: 5 000 000 € HT









